Het voormalig Kralings Museum in Rotterdam is getransformeerd tot een luxe appartementengebouw. Het gebouw bevat drie appartementen met een gemeenschappelijke entree en een lift naar de bovengelegen verdiepingen. Het project Casa K is ontworpen door PEÑA architectuur.
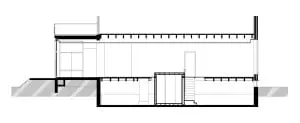
Het project Casa K betreft het appartement op straatniveau en bestaat uit twee lagen: een begane grondverdieping van 195 m2 en een souterrain van 90 m2. Het appartement heeft een tuin van ruim 600 m2. In het project Casa K, is gebruik gemaakt van de bestaande installatiestructuur. Voor de twee woonlagen is een totaal nieuw ontwerp gemaakt. Het was een uitdaging om het raamloze souterrain en de begane grond één geheel te laten worden binnen de grenzen van het beschermd stadsgezicht. Ook het interieur werd nieuw ontworpen. Kasten in de werkkamer, de slaapkamer en de opslagruimte maken onderdeel uit van het ontwerp. De keuken is volledig op maat gemaakt.
Het belangrijkste element van het ontwerp is een in notenhout uitgevoerde kubus met rondom beloopbaar glas. De kubus staat op de kelderverdieping en steekt door de begane vloer heen. In de woonkamer vormt de kubus een verhoogd plateau. Het beloopbaar glas ligt op het vloerniveau van de woonkamer. De kubus bepaalt door haar afmeting en positionering de nieuwe ruimteverdeling van de woning. De woonkamer krijgt hierdoor een duidelijk voor en achtergedeelte.
Projectgegevens:
Locatie: Hoflaan Rotterdam
Ontwerp: PEÑA architecture
Architect: Gabriel Peña
Bouwer: Steinvoort BV, Rotterdam
Interieur: 13speciaal, Rotterdam
BVO: 285 m2 en 600 m2 tuin
Opgeleverd in 2013
Fotografie: PEÑA architecture
Schrijf je in voor de nieuwsbrief
Ontvang iedere week het laatste nieuws en informatie op het gebied van architectuur in uw mailbox.






