Projectgegevens
| Projectarchitect | Ramin Visch |
|---|---|
| Ontwerpteam | Ramin Visch, Tobias Cassel, Femke Poppinga, Rick Abbenbroek |
| Opdrachtgever | Stichting Het Ketelhuis, Amsterdam |
| Adviseur Constructie | Helder Design, New York |
| Adviseur installaties | Bennink Klimaattechniek, Amsterdam |
| Adviseur akoestiek | TeamProjects, Utrecht |
| Hoofdaannemer | Bouwbedrijf M.J. de Nijs en Zonen, Warmenhuizen |
| Start bouw | Maart 2006 |
| Oplevering | September 2006 |
| Bruto vloeroppervlakte | 660m² |
| Bruto inhoud | 4720 m³ |
| Bouwkosten | €840.000 excl. BTW |
| Tekst | Iris Knapen |
| Foto's |
Op het terrein van het Cultuurpark Westerpark staat het in 1903 gebouwde ketelhuis van de Westergasfabriek. Sinds 1999 heeft Het Ketelhuis de functie van bioscoop. Door het grote succes was de filmzaal na enkele jaren niet meer toereikend. Daarom kreeg Ramin Visch de opdracht om de door hem ontworpen zaal te vervangen door drie zalen plus een filmcafé. Dit alles in dezelfde ruimte. In duidelijk herkenbare volumes heeft Visch het hele programma van eisen ondergebracht.
In het nieuwe ontwerp moest niet alleen het aantal zitplaatsen en zalen worden uitgebreid, maar tevens voldoende ruimte overblijven voor een ruim theatercafé. Daarbij was de sfeer belangrijk: zowel de vrijwilligers als de bezoekers waren gehecht aan de ongedwongen sfeer van het eerste filmtheater. In eerste instantie werd gekeken naar de mogelijkheid van een nieuwe zaal op de bestaande zaal. Dit bleek constructief ingewikkeld en kostbaar. Bovendien wilde de opdrachtgever uiteindelijk geen twee, maar liever drie zalen én een theatercafé. Dit alles leek in eerste instantie een onmogelijke opgave, zeker gezien het beperkte oppervlak van 360 m2 en het feit dat het pand een monumentenstatus heeft. De oplossing bleek een doos-in-doos-constructie, waarbij de binnendoos akoestisch ontkoppeld is van de buitendoos en met grote vanzelfsprekendheid harmonieert met de karakteristieken van het oorspronkelijke gebouw.
Het exterieur van Het Ketelhuis verraadt weinig van de binnenwereld. Nog steeds staat het stoere fabrieksgebouw onaangedaan in al zijn glorie op het inmiddels trendy Westerparkterrein. Een kijkje door de hoge vensterpartijen maakt echter nieuwsgierig, want hier kondigt zich het interieur al op bescheiden wijze aan. Pal achter het glas duikt een met hout bekleed volume op, dat bij nader onderzoek de behuizing van de nieuwe bioscoop blijkt te zijn. Dit volume is door Visch vakkundig in de oudbouw geplaatst, naar één zijde opgeschoven en op de eerste verdieping voorzien van een uitkraging waardoor op de begane grond een ruime entree- en cafézone overblijft. Het aanvankelijke gebrek aan ruimte levert zo een tegengesteld resultaat op: een overzichtelijk en juist ruimtelijk interieur tegen een fraai industrieel decor.
Twee werelden
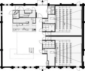
Bij binnenkomst is de oorspronkelijke sfeer nog goed voelbaar. Omgeven door stalen vakwerkspanten, trekstangen, ruwe muren en industriële loopbruggen kijk je door de oorspronkelijke vensters direct naar de buitenlucht. De ruimte is onmiskenbaar authentiek, maar evenzogoed eigentijds door de ingrepen die Visch er heeft gedaan. Niet alleen de drie bioscoopzalen, maar ook de bar en verbindingstrap, zijn opgevat als losse volumes. Hierdoor bestaat geen misverstand over wat oud en wat nieuw is. Elk volume springt duidelijk in het oog, zowel door de vormgeving als door het kleur- en materiaalgebruik. Allereerst is daar het zojuist genoemde, met larikshout beklede, volume van de filmzalen. Deze kraagt uit over de cafézone en heeft met zijn afgeronde vorm een verzachtende werking op de omliggende ruimte. De bar en het noodtrappenhuis zijn samengevoegd in één helderblauw volume. De ticketbalie is hierin duidelijk te onderscheiden door de rode kleur die ook voor de zalen is gebruikt. De stalen trap vormt het sluitstuk van de ingrepen van Visch. Deze verbindt de zaal op de verdieping met de begane grond en lijkt uit één plaat te zijn gesneden. Hier wordt de eenheid nog extra geaccentueerd door de balustrade bewust los te houden van de bioscoopwand en de trap alleen minimaal − ter hoogte van het eerste bordes − met een trekstang te verankeren.
De zalen zelf vormen een sterk contrast met de ontvangstzone. Waar het entreegebied en cafégedeelte duidelijk in verbinding staan met de geschiedenis van het pand en − via de grote vensters − met de ‘reële’ wereld buiten, begint hier de wereld van de fantasie. Afgezonderd en geborgen in een cocon van hout en omgeven door rood tapijt, sluit je je af van de buitenwereld. Voor de lijnen van de plafonds zijn de projectielijnen als uitgangspunt genomen. Hierdoor is er sprake van een letterlijk verruimende blik. Hoewel de beide kleine zalen slechts 50 stoelen bevatten, doen deze daardoor toch ruim aan.
Technisch vernuft
Om alle kanalen en technische voorzieningen onder te kunnen brengen, zijn de projectiekaders en geluidsboxen op maat gemaakt en met de grootst mogelijke precisie ingepast in de krappe bemetingen. De bezoekers zal dit niet opvallen, voor hen lijken de zalen net zo vanzelfsprekend als in elke andere bioscoop. Uit kostenoverwegingen is besloten niet het gebouw als geheel te isoleren, maar extra aandacht te geven aan de luchtbehandeling. Om hinderlijk blaasgeluid tijdens filmvertoningen te voorkomen, is gebruik gemaakt van extra brede luchtbehandelingskanalen. Deze zijn voor het oog van de bezoeker onzichtbaar weggewerkt op het dak van de zalen. De kanalen lopen door een krappe ruimte van 50 cm tussen de achtergevel van het zalencomplex en de buitengevel. De zalen zijn onderling, en ten opzichte van de overige ruimtes, akoestisch volledig van elkaar gescheiden. De hoofddraagconstructie is van staal, voor de wanden is metalstud toegepast. Voor het totale volume hoefden slechts twee trekstangen te worden onderbroken, de rest van het monument bleef intact.
Fraai resultaat
Met zijn losse volumes is Visch erin geslaagd een fraai bioscoopgebouw te maken dat het bestaande gebouw volledig respecteert en tegelijkertijd een breed programma van eisen mogelijk maakt. Een bijzondere gewaarwording zijn de twee werelden: enerzijds de intieme wereld van de film in de houten cocon en eromheen de werkelijke wereld − de realiteit − met daarin duidelijk afleesbaar de geschiedenis waarop deze is gestoeld.






