Beleving is een belangrijk aspect van het merk Red Bull. Voor de nieuwe vestiging in de puntloodsen op de voormalige NDSM-werf in Amsterdam vertaalde Sid Lee Architecture de kernwaarden van de energiedrankfabrikant in een kantoorinterieur dat actie en dynamiek uitstraalt.
De vier geschakelde puntloodsen op de voormalige NDSM-werf in Amsterdam-Noord vallen nauwelijks op tussen de industriële loodsen en afgetakelde scheepshellingen aan het IJ. Wat al helemaal niet opvalt, is dat in drie van deze loodsen het Nederlandse kantoor zit van Red Bull, het van oorsprong Oostenrijkse energiedrankje dat zich meestal met veel rumoer manifesteert. Geen logo’s, geen banners en al helemaal geen flikkerende neonlichten aan de gevel. Van buiten ogen de pakhuizen alsof er nog steeds scheepsonderdelen liggen opgeslagen. ‘We hebben bewust gekozen voor inside branding’, zegt Jan Smilde, directeur van de Nederlandse vestiging. Wat zoveel betekent dat het nieuwe kantoor alleen van binnen oogt als het visitekaartje van het merk Red Bull.
Locatiekeuze
De robuuste uitstraling van de industriële omgeving en de nabijheid van andere creatieve bedrijven – buurman is de jongerenzender MTV – en een skatebaan op het NDSM-terrein bepaalden de keuze van Red Bull voor deze locatie. De puntloodsen zijn onderdeel van de herontwikkeling van de Smederij, naar ontwerp van GroupA. De vijfde puntloods die direct aan de grote smederijhal grenst, komt in dit plan bovenop een hoteltoren van acht verdiepingen te staan. De andere vier puntloodsen zijn een exacte replica van de gesloopte voorganger. Authentieke elementen zijn de roestige stalen dakprofielen, die goed zichtbaar zijn omdat het dak is verhoogd met een glazen nok voor daglicht. Een ander restant van de oorspronkelijke gebouwen zijn de hemelsblauwe (de originele kleur van de NDSM-werf) houten schuifdeuren aan de buitengevel.
Sid Lee huisontwerper
De keuze om de casco renovatiebouw door het architectuurbureau van het internationale reclamebureau Sid Lee te laten inrichten, is even opmerkelijk als voor de hand liggend. ‘Sid Lee is al jaren het internationale reclamebureau voor Red Bull en is verweven met ons dna’, aldus directeur Smilde. ‘Uitdagend’ was wel de ‘relatieve onervarenheid’ en het feit dat de ontwerpers in Canada werkten. Door tweewekelijkse werkoverleg hield Red Bull de vinger goed aan de pols. ‘Af toe trokken we de teugels stevig aan om ze daarna juist helemaal te kunnen vieren.’
Actie en avontuur
Beleving is een belangrijk aspect van Red Bull. Immers, ‘een energiedrankje neem je niet alleen om je dorst te lessen’. Het merk sponsort avontuurlijke sporten als snowboarden en kytesurfen en evenementen als stuntvliegshows en dj-contests. ‘Making the impossible possible’ en ‘Yeeeh or nay’ zijn veelgebruikte kreten bij Red Bull, ook door de directeur. ‘Dus als we een nieuw kantoor gaan inrichten, dan maken er iets bijzonders van, of we doen het gewoon niet.’
Toch zijn er voor een ‘branding office’ opvallend weinig logo’s verstopt in het interieur. De kernwaarden zijn door Jean Pelland van Sid Lee Architecture vertaald in een kantoorinterieur dat inderdaad actie en dynamiek uitstraalt. In The Sound Room voor audiovisuele presentatie staat een dj-meubel. Ook gimmicks als lampenkappen van ijshockeyhelmen in de boardroom en cartooneske muurtekeningen van skateboards en sportvliegtuigjes die verwijzen naar het avontuurlijke profiel van Red Bull.
Noordvleugel met publieke ruimten
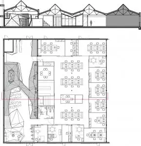
De entree, de keuken, de boardroom en verschillende informele zitplekken bevinden zich in de noordelijke, iets hogere loods. Blikvanger hier is de houten mezzanine aan beide zijden van de ruimte, verbonden met een brug. De betonnen vloer en de stalen panelen zorgen voor een stoere uitstraling. De grillige geometrische vorm geeft vaart en dynamiek aan het interieur – de associatie met een skateramp ligt voor de hand. Op een constructie van stalen balken is plaathout aangebracht, afwisselend naakt, met wit stucwerk of met plaatstaal met een coating van speciale olie. Onder de mezzanine zijn een open keuken, de boardroom en de crashroom, een informele overlegruimte, gebouwd.
‘Door een mezzanine met informele zitplaatsen boven en afgesloten ruimtes op de begane grond lopen publieke en bedrijfsruimte op een verrassende manier door elkaar’, duidt Harm Sas, de Nederlandse projectmanager van Sid Lee, dat een Canadees hoofdkantoor heeft. De grillige vorm is deels geïnspireerd op een schip en deels op een berg of een golf, en refereert zo naar omgevingen voor de extreme sporten die Red Bull sponsort. ‘Dit rebelse imago is versterkt door graffiti en muurtekeningen.’
Kantoortuin rond Stratos
De werkplekken voor de 35 werknemers bevinden zich in de naastgelegen twee loodsen, die zijn samengevoegd tot één kantoortuin met open werkplekken in het midden. Langs de muur liggen klassieke werkkamers, die soms hokkerig aandoen door de blinde muur. Door praktisch gebruik van glazen schuifwanden blijft het open karakter van het kantoor toch in tact. De open ruimte wordt verdeeld door The Stratos, een object met een geknikt dak, een inversie van de dakvorm van de loodsen. Deze afsluitbare ruimte, met een printerhok en een vergaderruimte, heeft een geperforeerde metalen huid die vanonder kan worden aangelicht, zodat het buitenaardse karakter wordt versterkt.
Speelse details
Het resultaat is een eigenzinnig maar functioneel kantoor, vol speelse details. De wc’s, aangeduid als The Holy Shit, hebben tegelmozaïeken van een skatende Jezus en een scratchende Maria; Op verzoek van Red Bull moest Sid Lee zelfs meer kleur aanbrengen in het interieur, zoals het bankje met gecapitonneerd rood leer bij de ingang. ‘Het oorspronkelijke ontwerp was te streng voor Red Bull.’ Ook het designmeubilair – met zowel klassiekers als de Plastic Chair van Ray & Charles Eames als hippe Apollo hanglampen van Romy Kühne – werd door Red Bull gekozen.
Zelfs het personeel werd betrokken bij inrichting. Daarom is er naast de bar The Crash Room, waar medewerkers ter ontspanning kunnen gamen. Work hard, play hard – het zou zomaar een reclamekreet van Red Bull kunnen zijn.





